
В этой статье мы разберем построение базовой конструкции платья по методике кроя ЦОТШЛ.
Метод конструирования одежды ЦОТШЛ один из наиболее используемых в нашей стране.
Почему же он остается таким популярным?
В чем его достоинства и есть ли у него недостатки?
Достаточно часто слышу о «преподавателях по шитью», которые вносят несколько изменений в этот метод конструирования и переименовывают его в «авторский и уникальный». Для девушки, которая только захотела научиться «сама строить выкройки» - этого достаточно, потому что оценить «авторство и качество», не имея опыта, – невозможно.
Итак – единый метод конструирования одежды разработан Центральной опытно-технологической швейной лабораторией (ЦОТШЛ) в 80-х годах на базе методики ЦНИИШП (метод в 50-60-х годов, в ретро-учебниках по кройке и шитью его легко найти).
ЦОТШЛ отличается заменой отдельных расчетных формул, измерениями фигуры и упрощением формул.Метод состоит из несколько частей:
- Классификация женских фигур
- Женские плечевые изделия
- женские поясные изделия,
- мужская одежда,
- одежда с втачным рукавов для девочек
- одежда с втачным рукавов для мальчиков
- различные покрои рукава,
- намелка лекал деталей на ткани с учетом фигуры заказчика
Этот метод чаще всего используется для изготовления одежды на заказчика.
Для метода характерно двух этапное построение чертежей: построение Базовой конструкции (БК), затем модельной конструкции (МК).
По одному и тому же принципу строятся конструкции на мужскую, женскую и детскую одежду.
В расчете участков конструкции (например, средний срез спинки, величина горловины, растворы вытачек и др.) предусмотрена возможность учета особенностей телосложения фигуры заказчика. В методе также даны рекомендации по учету свойств тканей.
Исходными данными для разработки конструкций деталей одежды, как и для многих других методов конструирования, являются
- размерные признаки (разговор. - мерки)
- прибавки на свободное облегание
При построении чертежа конструкций одежды используется 16-18 измерений.
Чертежи конструкций строят без припусков на швы и подгибку низа деталей.
Расчеты ориентированы на типовую, условно-пропорциональную фигуру, но допускается использовать измерения индивидуальной фигуры. (Осталось только правильно мерки снять))) ЦОТШЛ разработана классификация фигур по телосложению с учетом мышц и жироотложений и характером его распределения, а также классификация женских фигур в поясной части.
В методе для построения чертежа используются графические приемы: лекальные кривые (например, оформление проймы), определение положения конструктивных точек засечками дуг (плечевая точка). Нагрудная вытачка в БК женской плечевой одежде от наивысшей точки плечевого шва (от основания шеи). Отличительной чертой данного метода является наличие предварительного расчета конструкции, сущность которого заключается в определении ширины проймы и сравнении ее с минимальными табличными значениями.
Для построения чертежа мы будем использовать следующие измерения фигуры:
| Наименование мерок и условные обозначения | см |
|---|---|
| Полуобхват шеи (Сш) | 15 |
| Линия лопаток (Лл) | 18,5 |
| Линия груди (Лг) | 24 |
| Длина талии спинки (Дтс) | 40,5 |
| Ширина спины (Шс) | 15,5 |
| Длина бока (Дб) | 19,5 |
| Ширина проймы (Шпр) | 9,5 |
| Наклон плеча спины (Нпс) | 39 |
| Высота груди (Вг) | 25 |
| Длина переда до талии (Дтп) | 41 |
| Наклон плеча переда (Нпп) | 23 |
| Длина плеча (Дп) | 13 |
| Центр груди (Цг) | 9 |
| Ширина груди первая (Шг1) | 14,3 |
| Ширина груди вторая (Шг2) | 13 |
| Полуокружность груди третья (Сг3) | 40,5 |
| Уровень раствора вытачки (Урв) | 8,5 |
| Полуобхват талии (Ст) | 30 |
| Полуобхват бедер (Сб) | 44,8 |
| Длина изделия (Ди) | 90 |
В этой таблице для примера я использовала свои измерения, поэтому обращаю ваше внимание, что все вычисления я буду проводить по этим величинам, ну, а вы, в свою очередь, должны использовать свои данные.
Снятие мерок для базовой выкройки платья (ЦОТШЛ)
Приступаем к измерениям.
Полуобхват шеи (Сш)- измеряют по основанию шею (записывают половину мерки).

Линия лопаток (Лл) - измеряют от точки основания шеи до уровня самой выпуклой части лопаток, ориентируюясь по уровню между задними углами подмышечных впадин, сантиметровая лента должна проходить параллельно позвоночнику (мерку записывают полностью).

Линия груди (Лг) - измеряют от намеченной точки основания шеи через выпуклость лопаток до тесьмы, которая проходит по выступающим частям лопаток на спине и по самой высокой части груди. Сантиметровая лента параллельно позвоночнику (мерку записывают полностью).

Длина талии спинки (Дтс) - измеряют одновременно с меркой Лг вдоль спины от намеченной точки основания шеи через выпуклость лопаток до тесьмы на талии (используется наиболее выступающая часть лопатки) (мерку записывают полностью).

Ширина спины (Шс) - измеряют между задними углами подмышечных впадин, расположив мерную ленту горизонтально на уровне выступающих частей лопаток (записывают половину мерки).

Длина бока (Дб) - измеряют со стороны спины от линии талии по прямой до верхнего края линейки, приложенной к заднему углу подмышечной впадины (мерку записывают полностью).

Ширина проймы (Шпр) - измерение проводят с помощью линейки на уровне задних углов подмышечных впадин при свободно опущенной руке, измеряют расстояние между вертикалями, мысленно проведенными вниз от передних и задних углов подмышечных впадин (мерку записывают полностью).

Наклон плеча спины (Нпс) - измеряют от намеченной плечевой точки (конечная, низшая точка плеча) через выпуклость лопаток до центра спины на талии (мерку записывают полностью).

Длина переда до талии (Дтп) - измеряют от линии плеча у основания шеи через выступающую точку груди до линии талии (мерку записывают полностью).

Высота груди (Вг) - эта мерка измеряется одновременно с меркой длины переда до талии от линии плеча у основании шеи до выступающей точки груди (мерку записывают полностью).

Наклон плеча переда (Нпп) - измеряют от намеченной плечевой точки (середины плечевого сустава) до высшей точки груди (мерку записывают полностью).

Центр груди (Цг) - измеряют по горизонтальной линии между выступающими точками груди (записывают половину мерки).

Ширина груди первая (Шг1) - измеряется через выступающие точки груди в горизонтальной плоскости, измеряют расстояние между вертикалями, мысленно проведенными вниз от передних углов подмышечных впадин (записывают половину мерки).

Ширина груди вторая (Шг2) - измерение проводят в горизонтальной плоскости над основанием груди между передними углами подмышечных впадин (мерка записывается в половинном размере).

Полуокружность груди первая (Сг1) - измеряют вокруг туловища. Со стороны спины сантиметровая лента располагается горизонтально по нижним углам лопаток, касаясь своим верхним краем задних углов подмышечных впадин, затем по подмышечным впадинам. Спереди лента проходит над основанием груди и замыкается на правой стороне груди (записывают половину мерки).

Полуокружность груди вторая (Сг2) - измеряют вокруг туловища последовательно после мерки Сг1, не меняя положения мерной ленты на спине, которая должна проходить горизонтально по лопаткам и касаясь своим верхним краем подмышечных впадин, а спереди лента должна проходить по выступающим точкам груди, замыкаясь на правой стороне (записывают половину мерки).
![]() | ![]() |
Полуокружность груди третья (Сг3) - измеряют полный обхват груди, мерная лента должна проходить по выступающим частям лопаток на спине и по самой высокой части груди (записывают половину мерки).

Уровень раствора вытачки (Урв) - мерку измеряют одновременно с меркой Сг2 (на фото мерка Сг2 отмечена тесьмой). Измерения проводят от правой высшей точки груди до до линии основания груди (мерку снимают полностью).

Полуобхват талии (Ст) - измеряют по самому узкому месту талии (записывают половину мерки).

Полуобхват бедер (Сб) - измеряют горизонтально по наиболее выступающим точкам ягодиц (записывают половину мерки).

Длина плеча (Дп) - измеряют по линии плеча от основания шеи до крайней точки плеча (мерку записывают полностью)

Длина изделия (Ди) - измеряют от седьмого шейного позвонка посередине спины до требуемой длины (мерку записывают полностью).

Седьмой шейный позвонок найти очень просто: при наклоне головы самый выступающий позвонок - и есть седьмой.

Все измерения записываем с точностью до миллиметра, округлять измерения не допустимо!
В методике кроя ЦОТШЛ используются следующие прибавки на свободное облегание:
| мерки | Прилегающий силуэт | Полуприлегающий силуэт | Прямой силуэт |
|---|---|---|---|
| Полуобхват груди (Сг3) | 1,5-2см | 3-5см | 3-5см |
| Полуобхват талии (Ст) | 2-2,5см | 3-5см | 3,5-5см |
| Полуобхват бедер (Сб) | 1-1,5см | 2-3см | 2-2,5см |
Рассмотрим в качестве примера полуприлегающий силуэт с прибавками
по линии груди (к мерке Сг3) - 3 см
по линии талии (к мерке Ст) - 2 см
по линии бедер (к мерке Cб) - 2 см.
При этом прибавка по линии груди распределяется следующим образом:
ширина спинки (мерка Шс) - 25-30% (3х30% =0,9см)
ширина полочки (мерка Шг1) - 0-30% (3х30% =0,9см)
ширина проймы (мерка Шпр) - 30-70% (3х40% =1см).
Подготовим чистый лист миллиметровой бумаги, длина которого на 10см больше длины нашего изделия.
Сетка чертежа. В правом верхнем углу листа начертим прямой угол с вершиной в точке Р.
От точки Р вниз по прямой отложим последовательно мерки:
линию лопаток - мерка Лл (отрезок РЛ=Лл=18,5см),
линию груди - мерка Лг (отрезок РГ=Лг=24см),
длину талии спинки - мерка Дтс (отрезок РТ=Дтс=40,5см),
линию бедер находим по формуле 1/2 мерки Дтс, либо используем постоянную величину 16-19см и откладываем вниз по прямой от точки Т (отрезок ТБ=1/2Дтс=40,5:2=20,2см)
и длину изделия - мерка Ди (отрезок РН=Ди=90см).
Через все полученные точки проводим прямые влево по горизонтали.
Горловина спинки. От точки Р влево откладываем ширину горловины и поставим точку Р1 (отрезок РР1=1/3Сш+СО=15:3+1,5=6,5см). Вниз от точки Р откладываем глубину горловины и ставим точку Р2 (РР2=1/3РР1+СО=6,5:3+0,3=2,5см). Соединяем точки Р1 и Р2 плавной линией, соблюдая прямой угол в точке Р2.
Линия середины спинки. Выемка по линии талии для пропорциональной фигуры равна 1,5-2,5см, которую мы отложим влево от точки Т и поставим точку Т1 (ТТ1=2см). От точки Н влево отложим 1/2 отрезка ТТ1 и обозначим точку Н1 (НН1=1/2ТТ1=2:2=1см). Начертим среднюю линию спинки, соединяя последовательно точки Р2, Л, Т1 и Н1. Точки пересечения линий груди и бедер с линией середины спинки обозначим точками Г1 и Б1.
Примечание: Для перегибистой фигуры выемка по линии талии увеличивается и составляет 2,5-4см, для сутулой фигуры выемка уменьшается и составляет 0-1,5см.
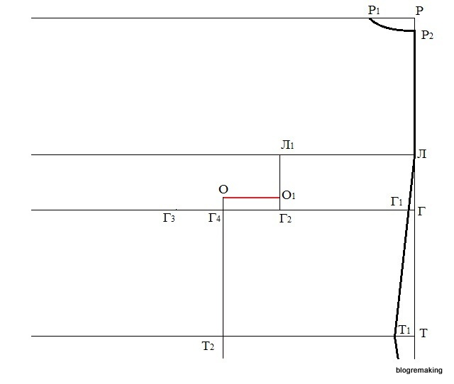
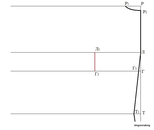
Ширина спинки. Отложим от точки Л влево мерку ширины спины + СО и поставим точку Л1 (ЛЛ1=Шс+СО=15,5+0,9=16,4см).
От Л1 вниз опустим прямую до пересечения с линей груди, а точку пересечения обозначим Г2.
Ширина проймы. Влево от точки Г2 отложим мерку ширины проймы + СО и поставим точку Г3 (Г2Г3=Шпр+СО=9,5+1,2=10,7см).
Положение бокового шва. От типа фигуры и конструкции рукава зависит положение бокового шва, зачастую боковой шов располагают на середине проймы, поделим отрезок Г2Г3 пополам, а точку пересечения обозначим Г4 (Г2Г4=Г4Г3=1/2Г2Г3=10,7:2=5,35см). От точки Г4 опустим прямую до линии низа, точку пересечения обозначим Н2, а точки пересечения с линиями талии и бедер обозначим Т2 и Б2.
Глубина проймы. Для построения используем мерку длины бока минус 1,5-3см, эту величину мы отложим от точки Т2 вверх по прямой и поставим точку О (Т2О=Дб-1,5см=19,5-1,5=18см).
От точки О вправо проведем прямую до пересечения с отрезком Л1Г2 и обозначим точку пересечения О1.
Плечевой срез спинки. Засечем дугу из точки Р1 радиусом равным длине плеча + глубина плечевой вытачки (ее величина для перегибистой фигуры равна 0,5-2см, для пропорциональной - 1,5-2,5см, для сутулой - 2-4см), а из точки Т1 засечем дугу радиусом равным мерке наклона плеча спины, и обозначим пересечение двух дуг точкой П (Р1П=Дп+2,5=13+2,5=15,5см), (Т1П=Нпс=39см).
Вверх от точки П проведем прямую до пересечения с прямой РР1 и обозначим точку пересечения П1.
Разделим отрезок ПП1 пополам и поставим точку Д, которую соединим тонкой линией с Р1.
Теперь от точки Р1 по линии Р1Д отложим 1/3 мерки длины плеча и поставим точку в (Р1в=1/3Дп=13:3=4,3см).
От точки в по тонкой линии Р1Д отложим глубину вытачки и поставим точку в1 (вв1=2,5см).
Вниз от точки в отложим длину вытачки и поставим точку в2, длина вытачки равна 6-10см (вв2=7см), соединим точку в2 с в1 и уравняем линии вытачки по большей стороне.
Примечание: Длина вытачки зависит от глубины вытачки, которая, в свою очередь, зависит от типа телосложения, чем глубже раствор вытачки, тем длиннее сама вытачка.
Соединим точки в1 и П.
Срез проймы спинки. От точки О1 вверх отложим 1/2 ширины проймы +1-2см и поставим точку О2 (О1О2=1/2Г2Г3+1=10,7:2+1=6,4см).
Построим биссектрису угла О1, на которой отложим 1/4 ширины проймы +0,5см и получим точку О3 (О1О3=1/4Г2Г3+0,5=10,7:4+0,5=3,2см).
Оформим линию проймы спинки плавной линией, соединяя точки П, О2, О3 и О.
Линия талии спинки. Выемка по линии талии равна 1,5-3см, эту величину мы отложим вправо от точки Т2 и получим точку Т3 (Т2Т3=2,5см).
Повышение линии талии равно 0-3см, с отрезной линией талии повышение = 0, для фигуры с крутыми бедрами повышение равно 3см, эту величину откладываем вверх от точки Т3 и отмечаем точку Т4 (Т3Т4=1,5см). Соединим плавной линией точки Т1 и Т4, соблюдая прямой угол в точке Т1.
Боковой срез лифа спинки. Соединим точки О и Т4 тонкой линией, которую поделим пополам и в точке деления восстановим перпендикуляр величиной 0,2-0,7см и оформим вогнутой линией боковой срез лифа спинки.
Ширина спинки по линии бедер. Найдем разницу между мерками полуобхвата бедер и полуобхвата груди с учетом прибавок на свободное облегание:
(Сб+СО)-(Сг3+СО)=(44,8+2)-(40,5+3)=3,3см.
Полученный результат делим пополам и откладываем от точки Б2 влево, получим точку Б3 (Б2Б3=3,3:2=1,7см).
Примечание: Если разница между полуобхватами бедер и груди получилась отрицательной, то полученный результат делим пополам и откладываем эту величину вправо от точки Б2. Если разница равна нулю, то точка Б3 совпадает с точкой Б2.
Соединим точки Т4 и Б3 тонкой прямой и разделим этот отрезок пополам, в точке деления восстановим перпендикуляр, величина которого равна 0,5-1см. Оформим плавной выпуклой линией боковой срез по линии бедер.
Ширина спинки по линии низа равна ширине спинки по линии бедер +1см, эту величину откладываем влево от точки Н1 и получаем точку Н3 (Н1Н3=Б1Б3+1см). Соединим точки Б3 и Н3.
Примечание: Для сутулых фигур ширина спинки по линии низа равна ширине спинки по линии бедер (Н1Н3=Б1Б3), для зауженного книзу изделия из Б3 опускают перпендикуляр до пересечения с линией низа, точку пересечения обозначают Н2.
Ширина полочки по линии груди. От точки Г3 влево откладываем мерку ширины груди первую с прибавкой на свободное облегание и ставим точку Г5 (Г3Г5=Шг1+СО=14,3+0,9=15,2см).
Высота груди. От точки Г5 вверх откладываем мерку высоты груди и получаем точку Р3 (Г5Р3=Вг=25см). Точку пересечения с линией лопаток обозначим Л2.
Линия середины полочки. Вниз от точки Г5 опустим перпендикуляр до линии низа, точку пересечения обозначим Н4, а точки пересечения с линиями талии и бедер обозначим точками Т5 и Б4.
Горловина полочки. От Р3 вправо проведем горизонтальную прямую, на которой отложим 1/3 мерки полуобхвата шеи + СО и поставим точку Р4 (Р3Р4=1/3Сш+СО=15:3+1,5=6,5см). Глубину горловины вычисляем по формуле 1/3 полубохвата шеи +1-1,5см и откладываем полученную величину от точки Р3 вниз, получим точку Р5 (Р3Р5=1/3Сш+1,5=15:3+1,5=7см). Соединим точки Р4 и Р5 и поделим отрезок пополам, в точке деления восстановим перпендикуляр величиной 2-2,5см и оформим плавной линией срез горловины полочки, соблюдая прямой угол в точке Р5.
Линии нагрудной вытачки. Вправо от точки Г5 отложим расстояние до центра груди и получим точку Ц (Г5Ц=Цг=9см).
Соединим прямой точки Ц и Р4 - этот отрезок является левой стороной вытачки.
На этом отрезке вверх от точки Ц отложим мерку уровня раствора вытачки и поставим точку У (ЦУ=Урв=8см). Засечем дугу из точки Ц радиусом равным отрезку ЦУ. Из точки У засечем дугу радиусом равным разнице между мерками Шг1 и Шг2 (Шг1-Шг2=14,3-13=1,3см). На пересечении этих двух дуг получим точку У1.
Теперь из точки Ц проведем прямую через точку У1, которую уровняем с левой стороной вытачки, и поставим точку Р6. Отрезок ЦР6 - правая сторона нагрудной вытачки.
Плечевой срез полочки. Из точки Р6 засечем дугу радиусом равным мерке длины плеча, а из точки Ц засечем дугу радиусом равным мерке наклону плеча переда. На пересечении этих двух дуг получим точку П2 (Р6П2=Дп=13см; ЦП2=Нпп=23см). Соединим прямой точки Р6 и П2 - этот отрезок и будет плечевым срезом полочки.
Срез проймы полочки. Вверх от точки Г3 проведем прямую, а из точки О влево проведем прямую до пересечения с вертикальной прямой из Г3, точку пересечения обозначим О4. От этой точки вверх отложим 1/2 ширину всей проймы минус 1см и поставим точку О5 (О4О5=1/2Г2Г3-1=10,7:2-1=4,4см).
Построим биссектрису угла О4, на которой отложим 1/4 ширины проймы минус 0,5см и поставим точку О6 (О4О6=1/4Г2Г3-0,5=10,7:4-0,5=2,2см).
Оформим плавной прямой срез проймы полочки, соединяя точки П2, О5, О6 и О, при этом точки П2 и О5 сперва соединим тонкой линией, которую поделим пополам, а в точке деления восстановим перпендикуляр 0,5-1,5см и оформим вогнутый срез проймы.
Линия талии полочки. Вниз от точки Р3 отложим мерку длины переда до талии и поставим точку Т6 (Р3Т6=Дтп=41см).
Выемка по линии талии на боковой линии полочки равна выемке на талии по боковой линии спинки, эту величину мы откладываем от точки Т2 влево и получаем точку Т7 (Т2Т7=Т2Т3=2,5см). Повышение линии талии равно 0-3см, с отрезной линией талии повышение = 0, для фигуры с крутыми бедрами повышение = 3см, при этом важно соблюдать, чтобы повышение линии талии полочки было равно величине повышения линии талии спинки, эту величину откладываем вверх от точки Т7 и отмечаем точку Т8 (Т7Т8=Т3Т4=1,5см). Оформим плавной линией линию талии, соединив точки Т6 и Т8, при этом угол в точке Т6 должен оставаться прямым.
Боковой срез лифа полочки. Соединим точки О и Т8 тонкой линией, которую поделим пополам и в точке деления восстановим перпендикуляр величиной 0,2-0,7см и оформим вогнутой линией боковой срез лифа спинки.
Ширина полочки по линии бедер. Расширение полочки по линии бедер равно расширению спинки по линии бедер, эту величину мы отложим вправо от точки Б2 и получим точку Б5 (Б2Б5=Б2Б3=1,7см). Напомню, что если разница между полуобхватами бедер и груди получилась отрицательной, то полученный результат делим пополам и откладываем эту величину влево от точки Б2. Если разница равна нулю, то точка Б5 совпадает с точкой Б2.
Соединим точки Т4 и Б5 тонкой прямой и разделим отрезок пополам, а в точке деления восстановим перпендикуляр, величина которого равна 0,5-1см. Оформим плавной выпуклой линией боковой срез по линии бедер.
Ширина полочки по линии низа равна ширине полочки по линии бедер +1см, эту величину откладываем вправо от точки Н4 и получаем точку Н5 (Н4Н5=Б4Б5+1см).
Примечание: Для сутулых фигур ширина полочки по линии низа равна ширине полочки по линии бедер (Н4Н5=Б4Б5), для зауженного книзу изделия из Б5 опускают перпендикуляр до пересечения с линией низа, точку пересечения обозначают Н6. В каждом из этих случаев расширение по линии низа полочки должно быть равно расширению по линии низа спинки.
Нижний срез. Удлинение полочки до линии низа зависит от осанки:
для пропорциональной фигуры удлинение равно 1-2см, эту величину мы откладываем вниз от точки Н4 и получаем точку Н6 (Н4Н6=1,5см).
для сутулой фигуры удлинение уменьшают и оно равно 0,5-1см или вообще отсутствует; при сильной сутулости и выпуклости ягодиц следует удлинить линию низа по спинке, а по переду оставить горизонтальной.
для перегибистой фигуры удлинение увеличивается и равно 2,5-4см.
для фигуры с небольшим бюстом, но выступающими ягодицами, полочку не удлиняют и низ оставляют в точке Н4.
Соединим плавной линией точки Н6 и Н5, соблюдая прямой угол в точке Н6.
Определение раствора вытачек по линии талии. Найдем разницу между мерками полуобхвата груди и полуобхвата талии с учетом прибавок на свободное облегание: (Сг3+СО)-(Ст+СО)=(40,5+3)-(30+2)=11,5см. Из полученной разницы вычтем уже известные величины выемок по линии талии по боковым швам и средней линии спинки: 11,5-(2,5+2,5+2)=4,5см. Полученный результат - сумма раствора вытачек по линии талии.
Величина раствора вытачки спинки = 1/3 от общего раствора вытачек (4,5:3= 1,5см);
величина раствора передней вытачки = 2/3 от общего раствора вытачек (4,5:3 х 2= 3см),
если величина раствора передней вытачки получается больше 3,5см, то на полочке дополнительно строят еще одну вытачку по линии талии.
Положение талевой вытачки на спинке. Разделим отрезок Г1Г2 пополам и от точки деления влево отложим 1-2см, поставим точку Г6. Из точки Г6 опустим вертикальную линию до пересечения с линией бедер, точку пересечения обозначим Б6, а точку пересечения с линией талией Т9.
Примечание: При крутых бедрах измеряют отрезок Г1Г6 и откладывают эту величину от точки Б1 влево и получают точку Б6. Отрезок Г6Б6 - серединная линия талевой вытачки спинки.
Повышение верхнего упора вытачки составляет 2-3см, поэтому продлим серединную линию вытачки вверх от точки Г6 на 2-4см (в моем примере 3см). Повышение нижнего упора вытачки составляет 2-5см, эту величину откладываем вверх от точки Б6 (в моем примере 3см).
От точки Т9 вправо и влево по линии талии отложим половину раствора талевой вытачки спинки (1,5:2=0,8см).
Оформим вытачку, соединив точки 3 и 0,8.
Положение талевой вытачки на полочке. Из точки Ц опустим вертикальную линию до линии бедер, при пересечении с линией талией получим точку Т10, а с линией бедер - Б7, отрезок ЦБ7 - серединная линия талевой вытачки полочки.
Понижение верхнего упора вытачки равно 2-4см (в моем примере 2см), повышение нижнего упора вытачки равно 4-7см (в моем примере 4см). От точки Т10 вправо и влево отложим половину раствора вытачки полочки (3:2=1,5см) и оформим вытачку, соединяя точки 2, 4 и 1,5.
Если раствор талевой вытачки больше 3,5см, то ее разбивают на две вытачки, вторая вытачка строится ближе к боковому шву, а ее раствор и длина меньше чем первая основная вытачка.
Для примера рассмотрим раствор равный 4см, тогда раствор основной вытачки составит 3см, а второй - 1см. Чтобы построить вторую вытачку, от точки Г3 влево отложим 2-3см и поставим точку Г7 (Г3Г7=3см). Из точки Г7 опустим вертикальную линию до пересечения с линией бедер, точку пересечения обозначим Б8, с линией талии - Т11. Эта вертикальная линия - серединная линия дополнительной вытачки.
Верхний и нижний упоры дополнительной вытачки должны быть короче основной вытачки на 1-2см (в моем примере понижение верхнего упора вытачки = 4см, а повышение нижнего упора = 6см). От точки Т11 вправо и влево по линии талии откладываем половину раствора вытачки, которую мы распределили на дополнительную вытачку (1:2=0,5см). И оформим линии вытачки, соединяя точки 4, 6 и 0,5.
На этом построение чертежа завершено, наша базовая выкройка платья готова!
Выкройка одношовного рукава (ЦОТШЛ)
| Наименование мерок и условные обозначения | см |
|---|---|
| Длина рукава (Др) | 52 |
| Длина рукава до локтя (Дрл) | 30,5 |
| Обхват плеча (Оп) | 25 |
| Обхват запястья (Оз) | 15 |
Или если чертеж спинки и полочки построены рядом, то сначала соединим прямой линией плечевые точки спинки и полочки. Полученный отрезок разделим пополам, а из точки деления опустим перпендикуляр на горизонталь проймы, и измерим длину этого перпендикуляра.
Теперь определим высоту оката рукава. Для этого от величины высоты проймы изделия отнимем коэффициент, значение которого зависит от размера фигуры: до 48-го размера К=2-4см
для размеров 48-52 К=1,5-2,5см.
Итак, Вок=Впр-К=16,9-2,5=14,4см.
Напомню, что в качестве примера я привожу свои измерения, ну, а вы должны использовать свои данные.
Подготовим чистый лист бумаги, длиной больше мерки длины рукава на 20-30см.
Длина и ширина рукава. Отступив от верхнего края листа 10-15см, начертим прямой угол с вершиной в точке А. Вниз от точки А отложим мерку длины рукава и поставим точку Н (отрезок АН=Др=52см). Вправо от точки А по горизонтали отложим половину мерки обхвата плеча с прибавкой на свободное облегание и поставим точку А1 (отрезок АА1=1/2(Оп+СО)=1/2(25+7)=16см).
Примечание: Прибавка на свободное облегание для фигур с полной рукой составляют 3-4см, для средней полноты рук - 5-6см, для худых рук - 6-7см.Высота оката. От точки А вниз отложим мерку высоты оката рукава, которую мы рассчитали чуть ранее, и поставим точку Г (АГ=Вок=14,4см). Проведем через точку Г горизонтальную прямую, а из точки А1 опустим перпендикуляр до пересечения с прямой, проходящей через точку Г, точку пересечения прямых обозначим Г1.
Линия локтя. От точки А вниз отложим мерку длины рукава до локтя и поставим точку Л (АЛ=Дрл=30,5см). Через точку Л проведем горизонтальную прямую.
Окат рукава. Разделим отрезок АГ пополам и поставим точку О, от которой вниз отложим 2-2,5см и получим точку О1 (ОО1=2,5см).
Влево от точки О1 отложим 0,5см для худой руки и 1см для полной руки и отметим точку О2 (О1О2=0,5см).
Разделим отрезок ГГ1 пополам, точку деления обозначим Г2, от которой влево отложим 1см и поставим точку Г3 (Г2Г3=1см).
Разделим отрезок А1Г1 пополам, поставим точку О3, а вверх от этой точки отложим 2,5см и получим точку О4 (О3О4=2,5см).
Отрезок АА1 поделим пополам, точку деления обозначим П. Вверх от точки П отложим половину мерки высоты оката рукава и получим точку О5 (ПО5=1/2Вок=14,4:2=7,2см).
От точки О5 влево отложим 1,5-2см (2см для полных рук) и поставим точку О6 (О5О6=1см).
Из точки О6 проведем прямую через точку О2 до пересечения с прямой, проходящей через точку Г, а точку пересечения обозначим Г4, при этом отрезок АГ эта прямая пересечет в точке О7.
Из точки О5 проведем прямую через точку О4 до пересечения с прямой, проходящей через точку Г, точку пересечения отметим Г5.
Измерим отрезок Г4Г и отложим эту величину вправо от точки Г, получим точку Г6 (ГГ6=Г4Г).
Теперь измерим отрезок Г1Г5 и отложим эту величину влево от точки Г1 и поставим точку Г7 (Г7Г1=Г1Г5).
Соединим прямыми точку О7 с точкой Г6 и точку О4 с точкой Г7.
Оформим плавной линией верхнюю и нижнюю часть оката свернутого рукава.
Передний перекат рукава. Выемка по линии локтя составляет 0,5-1см, эту величину откладываем вправо от точки Л и отмечаем точку Л1 (ЛЛ1=1см).
Через точку Н проведем горизонтальную прямую, на которой от точки Н влево отложим 1,5-2см и получим точку Н1 (НН1=2см).
Соединим прямыми точки Г, Л1 и Н1.
Ломаная прямая О7,Г, Л1, Н1 - передний перекат рукава.
Ширина рукава по линии низа. Вправо от точки Н1 под прямым углом к прямой Л1Н1 отложим половину мерки обхвата запястья с прибавкой на свободное облегание (СО=2-4см) и поставим точку Н2 (Н1Н2=1/2(Оз+СО)=(15+4):2=9,5см).
Задний перекат рукава. Соединим прямой точки Г1 и Н2, эта прямая пересечет линию локтя в точке Л2.
Выпуклость по линии локтя составляет 1,5-2см, эту величину отложим вправо от точки Л2 и получим точку Л3 (Л2Л3=1,5см).
Соединим прямыми точки Г1, Л3 и Н2.
Ломаная прямая О4,Г1, Л3,Н2 - задний перекат рукава.
Положение среднего шва рукава. Поделим отрезок Л1Л3 пополам, точку деления обозначим Л4, влево от этой точки отложим 1см и получим точку Л5 (Л4Л5=1см). Отрезок Н1Н2 поделим пополам, обозначим точку деления Н3. Влево от точки Н3 отложим 1см и поставим точку Н4 (Н3Н4=1см). Соединим прямыми точки Г3, Л5 и Н4. Ломаная линия Г3, Л5, Н4 - средний шов рукава.
Передний срез рукава. Измерим отрезок ГГ3, эту величину мы отложим влево от точки Г под прямым углом к отрезку ГЛ2 и поставим точку Г8 (Г8Г=ГГ3).
Измерим отрезок Л1Л5 и эту величину отложим влево от точки Л1 по горизонтали и получим точку Л6 (Л6Л1=Л1Л5).
Измерим длину отрезка Н1Н4 и отложим эту величину влево от точки Н1 по горизонтали и отметим точку Н5.
Соединим прямыми точки Г8, Л6 и Н5. Ломаная прямая Г8, Л6, Н5 - передний срез рукава.
Локтевой срез рукава. Измерим отрезок Г3Г1, отложим эту величину вправо от точки Г1 под прямым углом к прямой Г1Л3 и отметим точку Г9 (Г1Г9=Г1Г3).
Измерим отрезок Л5Л3 и эту величину отложим вправо по горизонтали от точки Л3, получим точку Л7 (Л3Л7=Л5Л3).
Из точки Л3 засечем дугу радиусом равным отрезку Л3Л7, а из точки Л7 засечем дугу радиусом равным глубине локтевой вытачки (2-2,5см), на пересечении этих дуг получим точку Л8, которую соединим с точкой Л3. Отрезки Л3Л7 и Л3Л8 - стороны локтевой вытачки.
Измерим отрезок Н4Н2 и эту величину отложим вправо от точки Н2 под прямым углом к прямой Н2Л3 и поставим точку Н6 (Н2Н6=Н4Н2).
Соединим прямыми точку Г9 с точкой Л7 и точку Л8 с точкой Н6.
Отразим зеркально нижний окат рукава (О7Г3=О7Г8)
по локтевой стороне рукава окат рисуем от точки О4, касаясь наклонной.
Проверка построений чертежа.
Проверим мерки длины: отрезок АГ=мерка Вок=14,4см; отрезок АЛ=мерка Дрл=30,5см; отрезок АН=мерка Др=52смПроверим ширину рукава: отрезок Г8Г9=Оп+СО=25+7=32см; ширина головки рукава ГГ1=1/2(Оп+СО)=1/2(25+7)=16см
Измерим Г8Н5 и сравним с суммой отрезков Г9Л7+Л8Н6 - с учетом оттяжки отрезок Г8Н5 должен быть меньше, чем сумма отрезков на 0,5-1см.
Проверим путем измерения длину оката рукава и сравним ее с измеренной, откорректированной проймой лифа. С учетом припосадки оката рукава его длина должна быть больше длины проймы лифа на величину припосадки.
На этом построение конструкции рукава завершено, наша выкройка одношовного рукава с локтевой вытачкой готова!


Свежие комментарии